

La flessibilità della RCB permette di lavorare valvole motore di dimensioni stelo e tipo di gole differenti con un tempo di cambio tipo molto rapido. La mola utilizzata è Ø 610 mm..

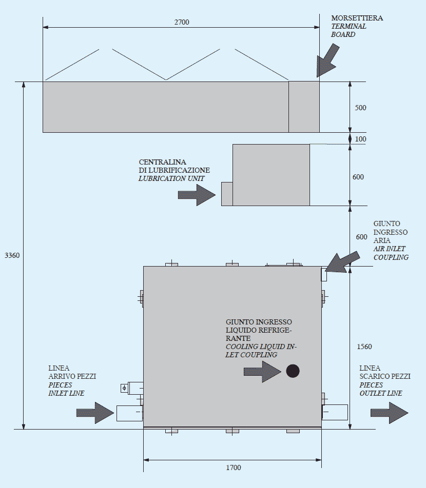
Sul lato destro della macchina è presente l’unità di controllo CNC. Per la sicurezza del personale la macchina è completamente protetta da ripari antinfortunistici, con un portello scorrevole blindato nella parte anteriore della macchina ed una analoga finestratura posteriore. Le pareti laterali sono dotate di sportelli metallici con chiave e blocco elettrico di sicurezza. Le valvole arrivano dalla parte superiore della macchina. Un caricatore a gravità alimenta la tavola rotante a 3 posizioni che inserisce la valvola nel mandrino portapezzo. Dopo la lavorazione la valvola viene scaricata sullo scivolo e poi sul trasportatore posizionato sul lato sinistro della macchina. La testa mola è montata sulla slitta incremento mola che assicura il movimento di avvicinamento alla valvola ed il movimento di incremento per la rettifica. Sulla stessa slitta sono montate le slitte incremento diamante ed il mandrino diamante.
La valvola, proveniente dal caricatore a gravità, viene introdotta in una delle 3 pinze della tavola rotante ed è messa in rotazione da un mandrino azionato da motore brushless digitale.
La tavola ruota di 120° posizionandosi in corrispondenza della testa porta pezzo. La testa porta pezzo avanza e si innesta con la pinza della tavola rotante per mezzo di un giunto dentato.
La rettifica della zona gole viene effettuata. La testa porta pezzo si sgancia e arretra. La tavola ruota di 120° portandosi nella posizione di scarico.
La valvola viene espulsa e depositata nello scivolo di scarico.



| DATI TECNICI / TECHNICAL FEATURES | ||
|---|---|---|
| . | unita di misura | valore |
| Dimensione valvola: diametro testa diametro stelo lunghezza |
mm. | 20 - 60 4,5 - 12 75 - 200 |
| Tempo ciclo | pz/h | 700 |
| Dimensioni mola | mm. | 610 x 25 x 203,4 |
| Velocità periferica max. | mt./sec. | 100 |
| Potenza elettromandrino mola | kW | 30 |
| Alimentazione | V/Hz | 400V 50Hz 3pH |
| Aria | bar | 5 - 6 |
| Dimensioni (x altezza 2100 mm.) | mm. | 2200 x 1860/td> |
| Peso macchina | kg. | 6000 |