

La flexibilidad de la RCB permite mecanizar válvulas de motor de diferentes tamaños de vástago y tipo de ranuras con un tiempo de preparación muy rápido. La muela abrasiva tiene un Ø de 610 mm.

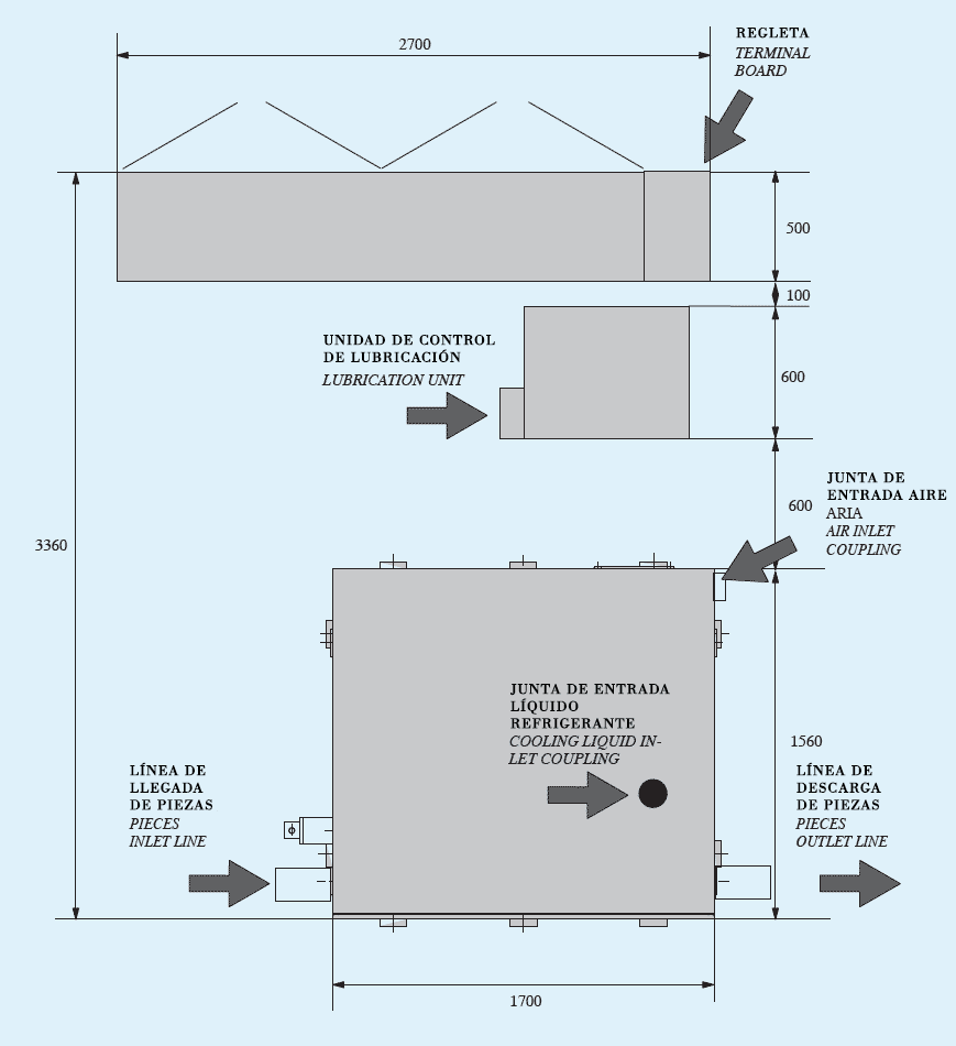
La unidad de control del CNC se encuentra en el lado derecho de la máquina. Para la seguridad del personal, la máquina está totalmente protegida por guardas de seguridad, con una puerta corredera blindada en la parte delantera de la máquina y una ventana similar en la parte trasera. Las paredes laterales están equipadas con puertas metálicas con llave y un cierre de seguridad eléctrico. Las válvulas salen de la parte superior de la máquina. Un cargador por gravedad alimenta la mesa giratoria de 3 posiciones que inserta la válvula en el husillo de la pieza. Tras el mecanizado, la válvula se descarga en la rampa y luego en el transportador situado en el lado izquierdo de la máquina. El cabezal de la muela está montado en el carro de aumento de la muela, que asegura el movimiento de aproximación a la válvula y el movimiento de aumento para el rectificado. Los carros de entrada de diamante y el husillo de diamante están montados en el mismo carro. La rectificadora RCB es una máquina para mecanizar la zona de la garganta de las válvulas de los motores de combustión interna. La flexibilidad de la RCB permite mecanizar válvulas de motor con diferentes tamaños de vástago y tipos de ranuras con un tiempo de cambio muy rápido. La muela utilizada es de Ø 610 mm.
La válvula, procedente del cargador por gravedad, se introduce en una de las 3 pinzas de la mesa giratoria y es girada por un husillo accionado por un motor digital sin escobillas.
La mesa gira 120° y se coloca en el cabezal de trabajo. El cabezal de sujeción de la pieza se desplaza hacia delante y se acopla a la pinza de la mesa giratoria mediante una junta dentada.
La zona de las ranuras está rectificada. El cabezal de sujeción de la pieza se desengancha y se retrae. La mesa gira 120° hasta la posición de descarga.
La válvula es expulsada y depositada en el canal de descarga.



| TECHNICAL FEATURES | ||
|---|---|---|
| . | unita di misura | valore |
| Tamaño de la válvula: diámetro de la cabeza diámetro del tronco longitud |
mm. | 20 - 60 4,5 - 12 75 - 200 |
| Duración del ciclo | pz/h | 700 |
| Tamaño de la muela | mm. | 610 x 25 x 203,4 |
| Velocidad periférica máxima | mt./sec. | 100 |
| Potencia de la muela | kW | 30 |
| Alimentación | V/Hz | 400V 50Hz 3pH |
| Aire | bar | 5 - 6 |
| Dimensiones (x altura 2100 mm) | mm. | 2200 x 1860/td> |
| Peso de la máquina | kg. | 6000 |