

La grande flessibilità della RSB permette di lavorare valvole di dimensioni e angoli sede diversi con un tempo di cambio tipo molto rapido. La mola utilizzata è Ø 610 mm.





| DATI TECNICI / TECHNICAL FEATURES | ||
|---|---|---|
| . | unita di misura | valore |
| Gamma di angolo sede | gradi | 45° - 71° |
| Dimensione valvola: diametro testa diametro stelo lunghezza |
mm. | 20 - 60 4,5 - 12 75 - 200 |
| Tempo ciclo | pz/h | 700 |
| Dimensioni mola | mm. | 610 x 17 x 304,8 |
| Velocità periferica max. | mt./sec. | 100 |
| Potenza elettromandrino mola | kW | 16 |
| Alimentazione | V/Hz | 400V 50Hz 3pH |
| Aria | bar | 5 - 6 |
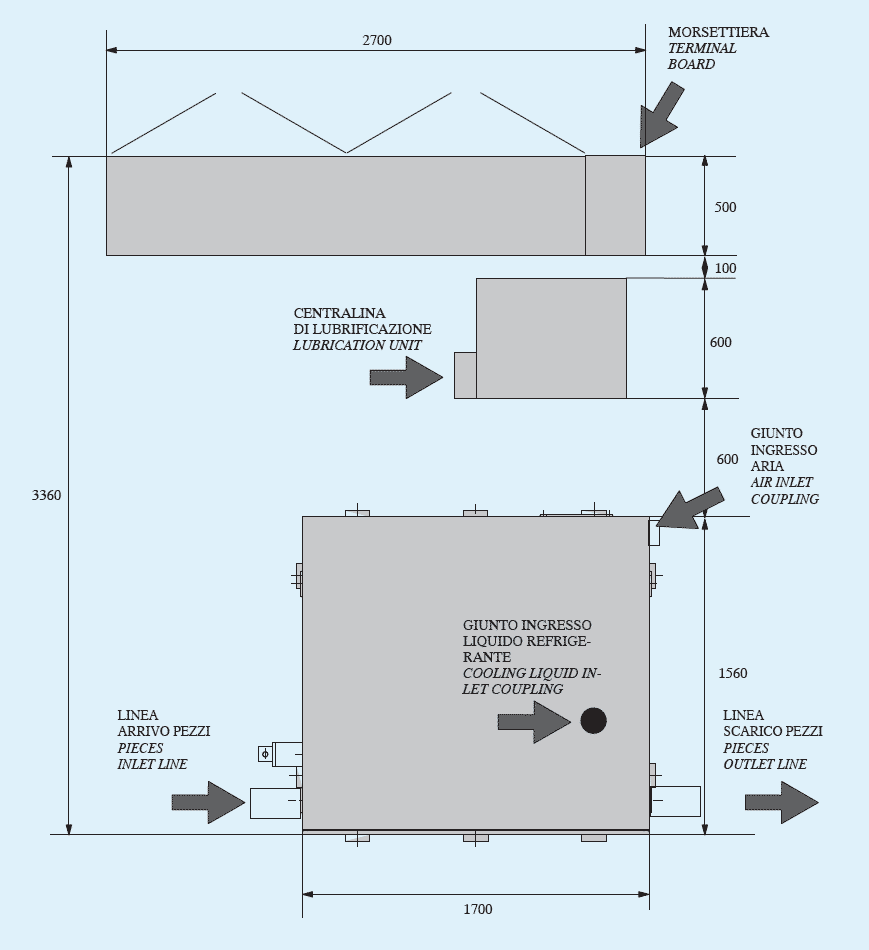
| Dimensioni (x altezza 2100 mm.) | mm. | 1700 x 1560 |
| Peso macchina | kg. | 6500 |