

La gran flexibilidad del RSB permite mecanizar válvulas de diferentes tamaños y ángulos de asiento con un tiempo de cambio muy rápido. La muela utilizada es de Ø 610 mm.





| TECHNICAL FEATURES | ||
|---|---|---|
| . | unita di misura | valore |
| Gama de ángulos del asiento | grados | 45° - 71° |
| Tamaño de la válvula: diámetro de la cabeza diámetro del tronco longitud |
mm. | 20 - 60 4,5 - 12 75 - 200 |
| Duración del ciclo | pz/h | 700 |
| Tamaño de la muela | mm. | 610 x 17 x 304,8 |
| Velocidad periférica máxima | mt./sec. | 100 |
| Potencia de la muela | kW | 16 |
| Alimentación | V/Hz | 400V 50Hz 3pH |
| Aire | bar | 5 - 6 |
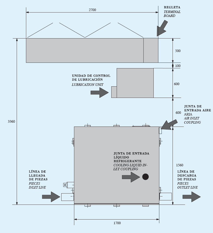
| Dimensiones (x altura 2100 mm) | mm. | 1700 x 1560 |
| Peso de la máquina | kg. | 6500 |